Советы покупателям
Эта глава специально для тех, кто уже решился на дорогостоящую покупку, но не знает, как при этом не пойти на поводу у аферистов и хотят купить действительно качественный товар. Читаем и запоминаем.
Тест качели следует начинать с проверки ее жёсткости. Попробуйте расшатать конструкцию. Определите, насколько она устойчива, насколько плотно подогнаны детали. Поверьте, если уже сейчас конструкция кажется расхлябанной, то со временем она и вовсе превратится рухлядь.
Присмотритесь к конструкционному материалу. Солидные фирмы используют трубы, тогда как «кустари» профиль. Попутно присмотритесь к изгибам. Они не должны быть ничем усилены. Разные там дополнительные пластинки говорят, что при производстве были использованы «гаражные» технологии, так как заводской изгиб спокойно выдерживает нагрузку в 300 кг, чего за глаза достаточно для качелей.
Дальше посмотрите, к чему крепятся цепи. Для них должны обязательно быть предусмотрены специальные ушка. Перекинутая через балку веревка или продета прямо сквозь трубу цепь вновь-таки верный признак «кустарщины».
Теперь о покраске. Заводские изделия покрываются порошковым материалом, тогда как жулики используют акриловый лак или синтетическую эмаль. Смочите кусок материи целлюлозным растворителем и слегка потрите ею каркас. Если на тряпке осталась краска – порошковыми ЛКМ тут и не пахнет, а значит и качели эти покупать не стоит.
Приподнимите подушки и посмотрите на чем они лежат. В идеале это должна быть панцирная сетка. Ну, в худшем случае сварная, но уж никак не холст. Последний используется только в самых дешёвых моделях.
Кстати о самых подушках. Избегайте изделий с полиуретановой крошкой. Они очень недолговечны и быстро изнашиваются. Бренды используют только цельный массивный лист, такой прослужит не одно десятилетие.
Сложнее с чехлами. Так, дралон выгорает под ультрафиолетом, зато служит годами. Хлопок не насколько долговечен, зато более приятен на ощупь и не боится солнечных лучей. Тут уж каждый сам себе советчик.
С навесом разобраться намного проще. Если там полиэстер – хорошо. Сетчатый полиэтилен – проходим мимо. Он не переживет и трех сезонов.
Обязательно проконтролируйте, чтобы в комплекте с качелями шла и москитная сетка. Прохлопаете этот пункт, будете покупать защиту от комаров отдельно, да еще и думать как ее потом прикрепить.
Ну и в последнюю очередь проверяйте комфортность изделия. Разные там подставки в подлокотниках, подвижность спинки. Возможно вы удивитесь, но если ваши качели успешно прошли все предыдущие «придирки», то о приятных мелочах производитель наверняка позаботился.
Изготовление качели из металла для дачи

Чтобы сделать качели из металла своими руками для дачи, берут уголок, круглые трубы или тавры. Мастера предпочитают профильную трубу, как прочный и надежный материал.


Применяют:
- профиль квадратный или прямоугольный для стоек, распорок;
- овальный для гнутых элементов;
- плоский – для вспомогательных деталей.
По фиксации различают стационарные и переносные изделия. В первом случае устройства ставят на бетонированные стойки, во втором – опоры крепят к раме, заглубленной в грунт. Переносные железные качели удобны, если на зиму их убирают в дом.
Конструкцию выбирают в виде букв «А», «П», для переносных изделий применяют Л-образные опоры. Сиденья подвешивают на хомуты, анкерные болты или шариковые подшипники. Детали для навешивания проверяют на прочность, смазывают.
Необходимый инструмент и расходные материалы
Чтобы соорудить металлические уличные качели для дачи своими руками, пригодятся:
- сварочный аппарат;
- электроды 2,6 мм;
- профильные трубы шириной стенки 40-70 мм, толщиной 1-2 мм для сооружения стоек, перекладины;
- брус деревянный для лавочки 30х30 мм (сечение может быть больше или меньше);
- тросы, цепи;
- 6 рым-болтов с шайбами, гайками для фиксации;
- краска, лак.
Чертежи качелей из металла
Продумывая, как сделать сварные качели, исходят из параметров ширины одного посадочного места – не менее 0,5 м на человека. Высота на выбор хозяина, а между опорами и скамейкой оставляют расстояние в 35 см для веревочного крепления, 25 см для цепного.
Простой чертеж выглядит так:

Пошаговая инструкция по сборке
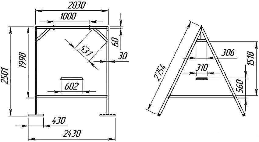
Как сделать сварную конструкцию А-образной формы:
- Нарезают 4 трубы по 2,5 м для стоек. Перекладины делают по 2,1 м.
- Обрезают края трубы под углом в 30 градусов, сваривают попарно в форме равнобедренного треугольника.
- Откладывают от вершины 2 м, приваривают горизонтальную перемычку длиной в 1,038 м.
- К вершинам стоек, разведенных на 2 м, приваривают горизонтальную перекладину так, чтобы концы выступали с обеих сторон на 5 см.
- Нарезают брус для скамейки, ошкуривают, лакируют, сушат.
- Деревянный брус крепят к каркасу сиденья. Фиксация на болты с шагом от 2 см.
- Сиденье навешивают на перекладину. Крепят на рым-болты, предварительно просверлив в перекладине отверстия.

Чтобы поставить взрослые или детские качели для дачи своими руками, делают так:
- роют 4 ямы глубиной до 50 см;
- делают бетонную смесь из готового порошка или цемента, воды, песка (1:2:3);
- на дно ям насыпают песок слоем до 10 см;
- ставят опоры;
- пространство между опорами и грунтом засыпают камнями и заливают бетоном;
- дают бетону высохнуть минимум 3-4 дня.
После просушки раствора конструкцию тестируют, окрашивают.
Изготовление навеса для летней качели
Полог или навес защитит от солнца, дождя. Самый простой вариант – натянуть на конструкцию тканый материал в виде маркизы. Такие применяют, устанавливая диван качели для дачи. Рейки держат плотную ткань, не давая ей сместиться.
Второй вариант – лист поликарбоната с фиксацией на металлопрофиль. Форму определяют боковые части навеса – классическая в виде пирамиды или полукруглая. Для второго вариант профиль гнут трубогибом.
Для сооружения навеса поперечные планки профиля фиксируют к основным балкам сваркой или болтами. Затем на деревянную раму натягивают полотно, фиксируют лист поликарбоната (на прессшайбы, болты). В конструкции верху качелей делают отверстия, фиксируют навес.
Инструменты и материалы
Для изготовления садовых качелей с навесом от солнца и осадков нам потребуется следующий инструмент:
- Рулетка, уровень, болгарка;
- сварочный аппарат + средства защиты;
- электродрель со сверлами по металлу и дереву;
- шуруповерт + саморезы для крепления поликарбоната и набор гаечных ключей.
Из материалов подготовим следующее:
- металлопрофиль (уголок и трубы сечением);
- деревянные бруски или доски для сборки скамьи, болты с полупотайными головками, укомплектованные шайбами и гайками;
- подвески с подшипником, цепи, карабины, рым-болты для подвешивания скамьи, выполненные из оцинкованного металла или нержавейки;
- анкера для крепления конструкции к бетонному основанию/согнутые длинные арматурные стержни;
- лист сотового поликарбоната для навеса, антикоррозийная грунтовка и краска по металлу, морилка и лак для дерева, кисти для нанесения лакокрасочных материалов.
Садовые качели из дерева своими руками: фото и чертежи, размеры и модификации
Если вы приняли решение заняться созданием качелей на дачном участке самостоятельно, в первую очередь стоит определиться с типом конструкции, которую желаете установить, и определить подходящее место для ее размещения. Чтобы облегчить и ускорить этап проектирования и подготовки, используйте фото качелей для дачи своими руками из дерева, чертежей которых немало в сети интернет.

Чертеж деревянных качелей оптимального размера для одного человека
Разновидности качелей садовых своими руками из дерева
Классификация садовых качелей достаточно обширна. В этом случае представлены основные виды конструкций:
семейные – имеют высокую вместительность. В основе конструкции лежит длинная скамейка, которая исполняет роль большого сидения, которое способно одновременно вместить до 5 человек. В большинстве случаев качели этого вида оснащаются собственным навесом, защищающим от солнечных лучей и непогоды;

На качелях семейного типа могут с комфортом разместиться 3-5 человек
детские – конструкции могут иметь значительное количество модификаций. Чаще всего основными составляющими такого изделия являются опоры, небольшое сидение и крепежные детали
Важно при этом обеспечить полноценный уровень безопасности для ребенка. Для этих целей в конструкции должны быть предусмотрены защитные элементы, которые предотвратят падение малыша. К таким элементам относится удобная спинка, поручни по бокам, перегородка, расположенная спереди, ремни безопасности, фиксирующие ребенка внутри сидения;
К таким элементам относится удобная спинка, поручни по бокам, перегородка, расположенная спереди, ремни безопасности, фиксирующие ребенка внутри сидения;

Оригинальные детские качели из дерева в виде лошадки
переносные – изделия с компактными размерами и облегченным весом. Эти характеристики позволяют не только перемещать качели по участку, но и складывать их в машину для перевозки в другое место на время отдыха. Как правило, закрепление таких изделий осуществляется на ветку дерева или же на предварительно изготовленную опору.

Переносные качели можно переставлять в любое место участка, в зависимости от погодных условий
Выбор места для размещения детских качелей своими руками из дерева
Любой тип строительства, который осуществляется на территории загородного земельного участка, начинается с этапа проектирования и выбора соответствующего места.

Простые детские качели, изготовленные с использованием деревянной доски и каната
По мере возможности следует подбирать на приусадебной территории участок с ровной поверхностью. Желательно, чтобы эта зона была укрыта от солнца и атмосферных осадков. Идеальное место для создания качелей – участок под деревом, куда падает густая тень. Допускается выполнение монтажа на крыльце, защищенном навесом.
Все эти условия напрямую влияют на уровень комфорта эксплуатации, так как садиться на сидение качелей, раскаленное под солнцем, неприятно и неудобно. А беспрепятственное воздействие дождя может повредить конструкцию.

Размещая в саду детские качели, необходимо обеспечить достаточно места для раскачивания
Стоит также брать во внимание тот факт, что по мере передвижения солнца по небосводу, тень, отбрасываемая деревом или другими объектами, будет перемещаться. Для монтажа следует подбирать такое место, где тень будет стоять в полуденное время. В этот отрезок дня солнце оказывает самое сильное и агрессивное влияние
В этот отрезок дня солнце оказывает самое сильное и агрессивное влияние.
Чертежи и фото садовых качелей своими руками из дерева для дачи
Если говорить об универсальных конструкциях, то качели подвесного типа, устанавливаемые на опоры А-образной формы, станут настоящим объектом отдыха для всей семьи. Причем устанавливать их можно как на больших дачных участках, так и в маленьких садах у дома. А сам процесс не затратный в отношении ресурсов времени и усилий.

Конструкция кресла-качелей с мягким чехлом-подушкой
Список обязательного для работы инструментария должен включать:
- рулетку и карандаш (рулетку можно заменить мерной лентой);
- лобзик механического типа или электрический;
- дисковую пилу;
- ножовку;
- угольник для измерений углов (комбинированного типа);
- стропильные штифты;

Качели-кровать, изготовленные своими руками
- проверочный угольник;
- пильные козлы;
- рейсмус и рубанок;
- молоток, отвертку, струбцины, гаечные ключи;
- стамеску (25 мм);
- электрическую дрель с набором сверл (10, 8 и 4,5 мм);
- брусок для шлифовки.

Простые деревянные качели для детских игр на свежем воздухе

Качели в тихом уголке сада позволят наслаждаться ароматами зелени
Подвешиваем качели. Выбираем один из двух вариантов опор
Для этого проекта мы решили предложить на выбор сразу два варианта подвески. Первый — это простая переносная стойка из бруса. При всей своей незамысловатости, конструкция очень надежна и устойчива. Ну и, конечно, главный ее плюс — это мобильность. Сняв сиденье с цепей, два человека в любой момент смогут перенести качели на новое место.

Начните с опор (А). Отрежьте четыре доски 50х150х1200 мм. Скруглите верхние углы, как показано на фото.

Для изготовления опорных столбов (В) используйте брус 100х100 мм, его будет достаточно, чтобы обеспечить конструкции необходимую жесткость и надежность. Длина столбов — 1900 мм.
Из этого же бруса вырежьте четыре прямоугольных заготовки для подкосов (С) длиной 460 мм. Заусуйте торцы под углом 45°, как показано на схеме.

Сделайте четыре верхних подкоса (Е): 50х100х760 мм.

Из бруса 100х100 выпиляйте продольную балку (D). Длина — 2400 мм. На концах балки, в местах пересечения со столбами, сделайте два одинаковых выреза шириной 100 мм.

Нанесите разметку, предварительно просверлите направляющие отверстия и соберите стойку с использование 75-мм саморезов или болтов. Сама по себе конструкция выглядит весьма громоздко, но с подвешенным сиденьем приобретает вполне гармоничный внешний вид.

Как ухаживать за качелями
Качели из брёвен сделанные своими руками – это гордость, и чем дольше они прослужат, тем приятнее будет создателю. Чтобы продлить срок жизни такой деревянной конструкции, необходимо следовать некоторым рекомендациям:
- Каждый год в начале осени необходимо покрывать изделие антисептическим средством или восковой морилкой.
- Каждые два года необходимо обновлять слой покраски. Предварительно следует зачистить поверхность наждачной бумагой, чтобы избавится от старой краски, и покрыть антисептиком.
- Не стоит устанавливать конструкцию около источников воды или огня.
- Нельзя оборачивать конструкцию полиэтиленовой плёнкой. Это не защитит изделие от воздействия влаги, а лишь спровоцирует процесс гниения древесины.
Создание детских садовых качелей своими руками: различные способы изготовления
Самыми популярными конструкциями для сада считаются качели подвесного типа. Существует несколько простых методов создания изделий для детей.
Согласно первой технологии используется сидение из древесины в виде широкой и толстой доски. В ней выполняются отверстия (пара с каждой стороны), куда продевается веревка. Делается это таким образом, чтобы подвес был протянут в одно отверстие, и выходил из другого, расположенного рядом.
Детские качели из скейтборда, шаг 1: подготовка материалов и инструментов.
На заметку! В целях усиления конструкции, чтобы предотвратить поломку доски в зоне размещения отверстий, под сидение можно установить с каждой стороны дополнительную дощечку со сквозными выемками. Эти отверстия должны располагаться точно под теми, что сделаны в сиденье. Веревка будет проходить через все парные отверстия.
Детские качели из скейтборда, шаг 2: демонтаж роликов с доски и сверление в ней отверстий.
Вторая технология предполагает создание качелей на основе рамы-каркаса из древесины. Этот элемент подвязывается к перекладине или ветке дерева веревками, а свободное пространство заполняется мелкими, но прочными дощечками.
Детские качели из скейтборда, шаг 3: подготовка деревянных брусков круглого сечения для подлокотников.
В качестве сиденья для конструкции, создаваемой третьим способом, используется половина оцилиндрованного бревна. Его следует разрезать вдоль. Данный вариант сиденья считается очень прочным, однако требует тщательной обработки. Поверхность бревна нужно хорошо зашкурить и отполировать, чтобы избавиться от сучков и заусениц.
Детские качели из скейтборда, шаг 4: протягивание веревки в отверстия доски и брусков-подлокотников.
Четвертый вариант создания конструкции предполагает использование доски в качестве сидения и сквозных металлических крепежей. Ассортимент современных магазинов предлагает фиксирующие крепежи различных форм, поэтому у вас будет достаточно большой выбор.
Детские качели из скейтборда, шаг 5: закрепление созданной конструкции на дереве с помощью карабинов.
В плане дизайна детские качели не налагают серьезных ограничений. Для их создания вы можете воспользоваться любыми подручными материалами. Например, веревку можно заменить цепью, деревянную доску, используемую в качестве сидения, можно заменить стулом, предварительно удалив его ножки. Обязательно используйте яркие расцветки, поскольку обилие красок очень нравится детям.
Разновидности качелей
Понятие «качели» настолько обширно, что сосчитать все типы и модели таких конструкций практически невозможно, но, некоторые экземпляры стоит знать «в лицо».
Качели в стиле пергола Особенностью такой модели, являются П-образные опоры. Над сиденьем всегда располагается навес, который защищает от дождя или палящего солнца. Конструкция массивна, поэтому подойдёт только для установки на большом, просторном участке.
Качели с навесом Модели с навесом – это идеальное решение для уличных качелей. Крыша защищает не только сидящего, но и саму качелю: сиденье реже подвергается воздействию дождя и снега, поэтому срок эксплуатации изделия значительно увеличивается.
Качели-кровать из поддонов Транспортировочные платформы – это недорогой и практичный стройматериал, который всё чаще используют для изготовления разной мебели. Сделать качели для сада из паллет – проще простого.
Качели из брёвен Круглые необработанные брёвна стоят намного дешевле чем брусья, но, прочностью им совсем не уступают. Качели из брёвен – это надёжная конструкция, которая создаст неповторимую атмосферу в саду.
Необычные качели на двоих Для установки таких качелей нужно иметь просторный участок. Конструкция состоит из двух скамеек, расположенных друг напротив друга. Внутри может легко расположиться 5-6 человек.
Качели-диван на веранду Такая модель обеспечит максимально комфортный отдых. Некоторые модели качелей-диванов, можно смело использовать в качестве полноценного спального места.
Качели-балансир из дерева Если в доме живут дети, то без качели не обойтись. Самой простой конструкцией детских качелей, является именно балансир. Такая модель не занимает много места и не нуждается в высокой опоре.
Качели из старой шины Конструкция проста и практична. Покрышку крепят к ветке дерева или деревянному столбу, с помощью толстой верёвки. Резиновое «сиденье» может быть закреплено и горизонтально, и вертикально.
Качели из стула Не стоит торопиться выбрасывать детали старой мебели. Стул у которого сломались ножки, может послужить основой для создания оригинальной качели. Останется только укрепить дно сиденья и подвесить конструкцию.
Качели из полипропиленовых труб и фанеры Остатки строительных материалов также могут послужить деталями для качели. Такие трубы и фанеру нельзя назвать особо прочными, но, вес ребёнка они точно выдержат.
Качели из скейтборда В роли сиденья можно использовать практически любые предметы, главное проявить фантазию. Качеля из доски от старого скейтборда – это отличный пример неординарного мышления.
Качели с опорами и покупной сидушкой В строительных магазинах можно найти практически что угодно, в том числе и готовое сиденье для качели. Останется лишь добавить к нему цепи или верёвку, и закрепить на ветке дерева. Если походящих веток нет, можно соорудить А-образную опору из брусков.
Качели из европаллет Европаллеты это те же поддоны, но, они имеют более плотную обшивку и немного другой формат. Также для изготовления таких платформ используют более качественную древесину, что заметно продлевает срок жизни изделия.
Комбинированные качели Такие модели имеют одну опорную перекладину и несколько вариантов сидений, которые закрепляют в ряд. Этот вариант будет особенно актуален для семьи, в которой растёт несколько детей из разных возрастных категорий.
Раскладывающиеся качели Раскладная модель подойдёт для установки в небольшом саду или на заднем дворе. Благодаря механизму складывания, конструкцию можно в любой момент убрать и раскладывать лишь при необходимости.
Как сделать металлические качели своими руками?
Для сборки садовых качелей своими руками отлично подходят металлические трубы из круглого или прямоугольного профиля. Конструкция состоит из прямоугольного основания и двух треугольных стоек с поперечинами и не предполагает наличие креплений к земле, ее можно переносить, как и деревянную модель.
В таблице приведены основные элементы качелей из металла:
| Элемент качели | Профиль, мм | Длина, м | Количество, шт. |
| Сторона основания | Труба 70×70 | 1,5 | 2 |
| Сторона основания | Труба 70×70 | 2 | 2 |
| Стойка | Труба 70×70 | 2,2 | 4 |
| Ригель | Труба 70×70 | 2 | 1 |
| Дуга для крепления канатов сиденья | Арматура д. 15 | 0,025 | 4 |
| Длинные стороны сиденья и спинки | Труба 40×40 | 1,6 | 3 |
| Сторона спинки | Труба 40×40 | 0,88 | 3 |
| Короткие стороны сиденья, подлокотник | Труба 40×40 | 0,5 | 4 |
| Вертикальная опора подлокотника | Труба 40×40 | 0,2 | 2 |
| Веревка или цепь, выдерживающая 300 кг | 3,4 | 1 |
Сборку садовых качелей выполняйте в такой последовательности:
- На трубах в местах сварки снимите фаску под углом 45°.
- Сварите две треугольные опоры из заготовок, обеспечив расстояние между стойками 1,5 м в нижней части.
- Установите поочередно треугольные опоры на короткие стороны прямоугольного основания, выставьте их вертикально и приварите к основанию.
- Приварите к ригелю дуги для крепления канатов.
- Установите ригель на вершины треугольных опор и приварите.
- Сварите прямоугольный каркас посадочного места из двух длинных и двух коротких заготовок.
- Сварите спинку из труб 160 см и 88 см в форме буквы «Ш».
- Приварите спинку к основанию сиденья под углом 100°.
- Приварите к каркасу посадочного места и спинке подлокотник, используя отрезки 20 см и 50 см.
- Очистите металлические поверхности металлической щеткой. Для предотвращения ржавчины прогрунтуйте детали глифталевым грунтом ГФ-021 и покрасьте алкидной эмалью ПФ-115.
- Заполните рамку сиденья деревянными дощечками толщиной не менее 20 мм.
- Приварите к краям спинки и каркасу посадочного места по 2 дуги для крепления подвеса.
- Закрепите канат соответствующей длины к дугам на перекладине и сиденье с помощью карабинов.
Как сделать качели для дачи — смотрите на видео:
Изготовление качелей для дачи своими руками — интересное занятие, позволяющее к тому же сэкономить до 70% стоимости изделий заводского производства. Для простейших конструкций достаточно наличие ненужных досок, брусков и минимальных навыков работы с пиломатериалами. Также обязательна фантазия и смекалка мастера, которая поможет отразить его личностные особенности и пристрастия.
Порода дерева
Так как качели делаются для установки на садовом участке, их долговечность во многом определяется устойчивостью материала к внешним факторам. В первую очередь – сырости. Любая технология «своими руками» предполагает разумную экономию, поэтому можно вести речь лишь о недорогих и доступных на территории страны породах. Целесообразно выбирать только хвойные. Наличие смолы в их структуре – уже определенная гарантия от гниения древесины.
Более дешевую ель приобретать не имеет смысла по причине недостаточной прочности материала. Возможно, эта порода хороша для конструирования чего-либо, находящегося в статике. Например, садовой лавочки. Качели же, подвергающиеся значительным динамическим нагрузкам, нуждаются в более крепкой древесине. Следовательно, сосна или лиственница. Последняя порода даже лучше, так как со временем, намокая, обретает дополнительную прочность.
https://youtube.com/watch?v=zF6NL1Wenfs
Садовые качели из дерева своими руками: фото и чертежи, размеры и модификации
Если вы решили заняться изготовлением качелей на дачном участке, то в первую очередь следует определиться с типом конструкции, которую вы хотите установить, и определиться с подходящим местом для ее размещения. Чтобы облегчить и ускорить этап проектирования и подготовки, используйте фото деревянных качелей своими руками, чертежей которых много в Интернете.
Чертеж деревянных качелей оптимального размера для одного человека
Разновидности качелей садовых своими руками из дерева
Классификация садовых качелей довольно широка. В этом случае представлены основные типы конструкций:
семья – обладают высокой вместимостью. В основе конструкции – длинная скамья, которая играет роль большого сиденья, на котором одновременно могут разместиться до 5 человек. В большинстве случаев качели этого типа имеют собственный навес, защищающий от солнечных лучей и непогоды;
На качелях семейного типа с комфортом разместятся 3-5 человек
детские – рисунки могут иметь значительное количество модификаций. Чаще всего основными составляющими такого изделия являются опоры, маленькое сиденье и застежки
При этом важно обеспечить полный уровень безопасности для ребенка. Для этого в конструкции должны быть предусмотрены защитные элементы, препятствующие падению ребенка. К таким элементам можно отнести удобную спинку, поручни по бокам, расположенную спереди перегородку, ремни безопасности, фиксирующие ребенка внутри кресла;
К таким элементам можно отнести удобную спинку, поручни по бокам, расположенную спереди перегородку, ремни безопасности, фиксирующие ребенка внутри кресла;
Оригинальные деревянные детские качели в виде лошадки
портативные – изделия с компактными размерами и малым весом. Эти особенности позволяют не только перемещать качели по площадке, но и помещать их в автомобиль для транспортировки в другое место во время отдыха. Как правило, крепление таких изделий осуществляется на ветке дерева или на сборной подставке.
Переносные качели можно переставить в любом месте участка в зависимости от погодных условий
Выбор места для размещения детских качелей своими руками из дерева
Любой вид строительства, выполняемый на территории загородного земельного участка, начинается с этапа планировки и выбора подходящего места.
Простые детские качели, сделанные из деревянной доски и веревки
По возможности следует выбирать участок с ровной поверхностью на территории двора. Желательно, чтобы эта территория была защищена от солнца и осадков. Идеальное место для создания качелей – под деревом, куда падает густая тень. Допускается установка на крыльце, защищенном навесом.
Все эти условия напрямую влияют на уровень комфорта использования, так как сидеть на качелях, греться на солнышке, неприятно и неудобно. А беспрепятственное попадание дождя может повредить конструкцию.
Размещая детские качели в саду, необходимо предусмотреть достаточно места для качелей
Также стоит учесть тот факт, что когда солнце движется по небу, тень от дерева или другого объекта будет двигаться. Для установки нужно выбрать место, где в полдень будет тень. В это время суток солнце оказывает наиболее сильное и агрессивное влияние.
Чертежи и фото садовых качелей своими руками из дерева для дачи
Если говорить об универсальных конструкциях, то подвесные качели, установленные на А-образных опорах, станут настоящим отдыхом для всей семьи. Также их можно устанавливать как на больших дачных участках, так и в небольших садах возле дома. Да и сам процесс не требует больших затрат времени и ресурсов.
Дизайн кресла-качалки с мягким наволочкой
Список инструментов, необходимых для работы, должен включать:
- угловой квадрат (комбинированный тип);
- ножовка;
- шпильки для балок;
- циркулярная пила;
- механический или электрический лобзик;
- рулетка и карандаш (рулетку можно заменить рулеткой);
Кровать-качалка своими руками
- электродрель с набором сверл (10, 8 и 4,5 мм);
- молоток, отвертка, струбцины, гаечные ключи;
- блок для шлифования.
- стамеска (25 мм);
- строгальный станок и рубанок;
- квадратный чек;
- козья пила;
Простые деревянные качели для подвижных игр для детей
Качели в тихом уголке сада позволят насладиться ароматами зелени
Детские деревянные качели для дачи
Деревянные качели для детей в подарок
Детские качели следует делать с учетом размера «роста». Несущая конструкция выполнена в форме буквы А, как наиболее надежная. Крепление – шарнирного пазового типа, это не даст расшатывать качели. На расстоянии, равном одной трети высоты от земли до верхней перемычки, закрепляется горизонтальная балка, придающая конструкции жесткость. Сиденье расширено, а спинка высока, так что ребенок может полностью лечь на нее. Рекомендуется, чтобы подвеска сиденья производилась с помощью цепи, которую можно регулировать по высоте по мере роста ребенка.
Контакт с почвой
Каркас может быть как переносным, так и стационарным, но обычно хозяева пытаются как можно надежнее закрепить раму на плоскости.
Для работ могут понадобиться определенные чертежи и точные замеры всех заготовок. Из-за маленького веса готовой конструкции она не отличается особой устойчивостью, поэтому основные опоры плотно прикрепляют к асфальту или бетонируют столбы в землю.
Такими манипуляциями конструкции придается надежность и более сильная фиксация в момент раскачивания. А также продумывают предохранители на перекладине от незапланированного переворачивания сиденья через нее при интенсивной скорости.
Выбор крепежа
Крепления являются самым критическим местом в качелях. Если они недостаточно качественные, либо установлены неправильно, вероятность получить травму на качелях сильно повышается.
Для садовых качелей в качестве подвесов чаще всего используются канаты или цепи. Канат очень прост в использовании, а некоторые его модели имеют высокое внутреннее трение, что ограничивает скорость и силу раскачки, оберегая тем самым от высоких рисков получения травм. Однако канаты в местах крепления могут быстро перетираться.
Цепи более надежны, выдерживают высокие нагрузки и долго разрушаются. Если звенья цепи сильно перетираются между собой, это сразу видно. Цепочка с крупными звеньями может защемить пальцы у детей, поэтому для детских качелей выбирают цепь с мелким звеном.
Жесткие крепления обычно используются в металлических моделях качелей, куда можно установить подшипниковый механизм для плавного качения. На деревянных качелях поставить такой механизм проблематично и требует особых навыков и оборудования.
Для крепления подвеса к основным деталям конструкции – раме и сиденью, можно использовать следующие монтажные детали:
- Хомуты с карабинами. Они распределяют основную часть нагрузки на верхнюю часть ригеля, что является самым лучшим способом крепления.
- Рым-болты, анкера с кольцом, U-крюк. Для крепления таких болтов в ригеле просверливается сквозное вертикальное отверстие. В верхней части болт фиксируется гайками, одна из которых используется в роли контргайки. Между гайками и ригелем укладывается шайба диаметром не менее 60 мм и толщиной от 4мм. Такие крепежи сильно ослабляют ригель сквозным отверстием. Для компенсации необходимо использовать балку большей толщины.
- Двойной крепеж. Благодаря особой конструкции, усилия равномерно распределяются на балку, сохраняя прочность конструкции. Минусом такого крепежного элемента является не эстетичный внешний вид.
- Веревочный крепеж. Главным преимущественным отличием веревочных крепежей от цепных является их дешевизна. Дорогостоящие монтажные материалы не используются. Для того, чтобы закрепить качели достаточно выучить несколько морских узлов, что во время доступности Интернета не будет большой трудностью.
Внимание! Монтажные детали в сидении устанавливаются только в его опорные балки. Нельзя крепить сиденье за верхние детали, так как при нагрузке они могут с легкостью оторваться от основной части.





























